Room-Speaker setup and the importance of 5mm !

I have this unanswered doubt about the possibility of applying the golden ratio. I hope you or someone here helps me with it.

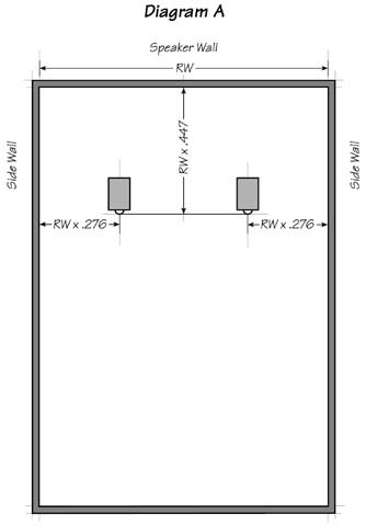
As the article says, “The distance from the center of the woofer face to the wall behind the speaker is Room Width (RW) x .447”

So, even for a small room of 10 ft width, it amounts to 4.5 ft. Assuming the speaker depth is 1 ft, it means a clearance of 3.5 ft behind the speaker and the front wall.

Now comes the challenge. For mine and most other BS speakers in the budget range,port in the rear produces sufficient bass reflex only at around 1-1.5 ft from the wall, beyond which the sound starts losing bass, weight and emotion. This is at least my experience with my speakers.

Doesn’t that make it impossible to implement the golden ratio for speakers with rear bass reflex port without compromising SQ in another way?

Or is there another explanation?
 
I have this unanswered doubt about the possibility of applying the golden ratio. I hope you or someone here helps me with it.

As the article says, “The distance from the center of the woofer face to the wall behind the speaker is Room Width (RW) x .447”

So, even for a small room of 10 ft width, it amounts to 4.5 ft. Assuming the speaker depth is 1 ft, it means a clearance of 3.5 ft behind the speaker and the front wall.

Now comes the challenge. For mine and most other BS speakers in the budget range,port in the rear produces sufficient bass reflex only at around 1-1.5 ft from the wall, beyond which the sound starts losing bass, weight and emotion. This is at least my experience with my speakers.

Doesn’t that make it impossible to implement the golden ratio for speakers with rear bass reflex port without compromising SQ in another way?

Or is there another explanation?
Sachin, I'm no expert. I merely provided a link to help the fm who needed an explanation on the Golden ratio.
My personal view is that reinforcement from the wall behind the speakers isn't necessary for a good speaker.
If a speaker is deliberately intended by the manufacturer to use such reinforcement, then the golden ratio may not be relevant. In such cases, even the rule of ⅓s would fail.
I do know that many speakers sound best with no wall at all and, for such speakers, it would be desirable to keep reflections and reinforcements at bay. Golden ratio and ⅓ role will then be useful.
I leave it to the experts to provide a more technical explanation.
 
Doesn’t that make it impossible to implement the golden ratio for speakers with rear bass reflex port without compromising SQ in another way?

Or is there another explanation?

based on my understanding, these and other calculators are leaning towards getting flat response, both bass and side reflections. Some may like this as well, rest as suggested in this thread, use this as a starting point and fiddle till desired results achieved....

I personally prefer to use cardas calculator for depth from front wall and then customise distance from sidewall based on sound stage.... I like a wide soundstage and depth in image... Distance from front wall plays a huge part in it
 
based on my understanding, these and other calculators are leaning towards getting flat response,
Thanks. So, it might result in a shallow low end (for rear ported speakers especially), but will result in a flatter frequency response even if over a smaller frequency range. Yes, the choice will depend on the individual’s preference. Given that I place higher value on the emotionality of the songs, I’d stick to close to the front wall placement. I’ve never enjoyed the better separated but less affective result from bringing the speakers further up. But I can imagine someone say into western classical or electronic music might prefer it.

My personal view is that reinforcement from the wall behind the speakers isn't necessary for a good speaker.
Thanks! That’s probably not the case with most budget range speakers. The rear port is used as a compromise for cheaper designs/builds with smaller woofers. So, unless I get a significant upgrade, I have to be content with the reinforcement from the wall, and resultant frequency imbalance. At least that puts the mind to ease!
 
Last edited:
Thanks. So, it might result in a shallow low end (for rear ported speakers especially), but will result in a flatter frequency response even if over a smaller frequency range. Yes, the choice will depend on the individual’s preference. Given that I place higher value on the emotionality of the songs, I’d stick to close to the front wall placement. I’ve never enjoyed the better separated but less affective result from bringing the speakers further up. But I can imagine someone say into western classical or electronic music might prefer it.


Thanks! That’s probably not the case with most budget range speakers. The rear port is used as a compromise for cheaper designs/builds with smaller woofers. So, unless I get a significant upgrade, I have to be content with the reinforcement from the wall, and resultant frequency imbalance. At least that puts the mind to ease!
Or pull the speakers into the room and compensate for bass with a subwoofer.
 
Thanks. So, it might result in a shallow low end (for rear ported speakers especially), but will result in a flatter frequency response even if over a smaller frequency range. Yes, the choice will depend on the individual’s preference. Given that I place higher value on the emotionality of the songs, I’d stick to close to the front wall placement. I’ve never enjoyed the better separated but less affective result from bringing the speakers further up. But I can imagine someone say into western classical or electronic music might prefer it.


Thanks! That’s probably not the case with most budget range speakers. The rear port is used as a compromise for cheaper designs/builds with smaller woofers. So, unless I get a significant upgrade, I have to be content with the reinforcement from the wall, and resultant frequency imbalance. At least that puts the mind to ease!

I am running an ATC SCM19 which is a sealed bookshelf in the middle of the room. There is plenty of bass and my musical enjoyment has improved massively!

Clean bass response is something which completely depends on quality of the amplification and speaker.
 
If the understanding is that speakers with a rear port are only or majorly affected by proximity to the rear wall then that is a fallacy except in the case of a rear ported speaker being extremely close to the rear wall - and we know better than to do that.
Bass from every type of speaker is affected by this proximity due to the nature of dispersion of bass frequencies.
 
Last edited:
I am running an ATC SCM19 which is a sealed bookshelf in the middle of the room. There is plenty of bass and my musical enjoyment has improved massively!

Clean bass response is something which completely depends on quality of the amplification and speaker.

Lucky you that you seem to have a perfect room
 
Thanks. Further exemplifies the premise that better speakers don’t need wall reinforcement to produce low end.
It all depends on how the speaker is designed older snell designs around which many Audionote speakers are designed are to be kept near the walls.. Older Klipschorns, Vitavox and even many Tannoys work best in the Corner.

This is not about how the ports are kept but how the speakers curves are.

That said unless specifically mentioned the majority of speakers need the space behind and is more dependent on physics of the Room nodes . This will usually be in the area of 1/3rd but again rooms are first for living and convenience and then for music hence some compromises in the placement are necessary.

This means moving to perhaps 1/5 or 1/7 ( always odd nos) to minimise these nodes
 
IME it's not only how far is the speaker from the front wall that matters, but also how far your seating position is from the speakers. For instance if your speakers are at 1/3rd location from the front wall and your listening position is also 1/3rd from the speaker, then you will seldom get any room enhancement or lift for the low frequency. Sitting at 2/3rd distance from the speakers can enhance low frequency. At the end of the day is how boomy your speakers are w.r.t room placement. Some times sitting at 1/3rd might work for you and sometimes 2/3rd position will be perfect. You cannot setup a speaker only by looking from the speaker and wall point of view, but also consider your relative sitting position from them.
 
I totally agree. There is something ethereal about a system which sounds right. Most of us get a good ballpark sound. A sound that we can live with happily (provided we are fortunate enough to have a decent synergistic setup). But for any audiophile who is a bit serious, there is always a tendency to improve things. It is probably due to the ballpark nature of the sound. We know it can be better but don’t know where to unlock.

The experiment at @arj setup with @prem playing the master chef role gave an insight into where the final knot is. Open it and music becomes free. The feeling of a room minimizes. It is like music in free air. Nothing is cut short, nothing feels added. I am very happy I learnt something new
So, you moved your speakers to 2.053meters from back wall. My room size is 12 feet X 15 feet, so will not get to play around. What can I do?
 
So, you moved your speakers to 2.053meters from back wall. My room size is 12 feet X 15 feet, so will not get to play around. What can I do?
are you placing the speaker along the long or short wall ? if along the short wall and firing down te long side, start with 5 feet ( 1/3) of the driver from the real and 4 feet of the insides edge of the speaker to the side wall...and try to adjust..
 
I thought this a good explanation/guide
I didn't go through the video because that is Hans who used to praise Tidal before the MQA scam. In general I get the impression he bats for equipment that costs $$. But the maximum improvement in my setup was when I tried toe-in. I got Tremendous improvement when I toed in my electrostats towards me. Though the manual says the electrostats are curved and don't require toe in. Similarly (maybe 2 years back) when I was going through the site of the company that makes those Mishra speakers, it said don't toe-in the speakers. So sometimes manufacturer may say something but the actual result could be something else.
 
ITs very room dependent. if you keep your speakers closer together to get depth then its better to fire straight. if you keep them wider for bigger soundstage then you have to toe in. Also depends on the dispersion of the speakers. Eg I used to have Merlins which had to be fired 10degree off from the ear and they had a protractor for that.
 
Wharfedale Linton Heritage Speakers in Red Mahogany finish at a Special Offer Price. BUY now before the price increase.
Back
Top