LaidToRest2020
Member
Hi all!
Since I am from a Tier2 city, I have had very few options of dealers and brands to listen to,
So Far I've heard the Emotiva Airmotive, Elac 5.3, Fyne F501E,Klipsch and XTZ setups.
However I heard them a few weeks or even months apart so couldn't really draw comparison to any one of them.
I was leaning towards the Klipsch given how clean they sound but the prices which were quoted to me were atrocious.
For Projectors I have only experienced the Benq TK710, and one of the ViewSonic's (dont recall which one) but was <1.5L. The biggest size I can fit in my room is 150", so I need recs for an ALR screen as well. I am very confused because I don't know how the legacy Brands like BenQ, Epson and Optoma compare to new age chinese brands like XGIMI and Hisense.
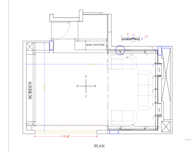
The room is designed to be a bar + theatre room with an outdoor party area attached, the family did not agree to a completely dedicated HT room.
I have the wires laid out (with the proper gauge) in my new house for a 7.1.4 HT system, with the ability to add a second sub in future, I also experienced the SVS PB2000Pro and really liked it, and the pricing is not very far from what its priced in the US.
I realise I will have to travel to listen and even buy the speakers im looking for, so im open to it. My usage will be 70% movies and 30% music.
The sound treatment of the room has been done by a local vendor.
My budget is 10Lakhs and maybe flexible by about 10%.
Room size is 24' length, 14' Wide and 9-9.5' height.
Thanks in advance

Since I am from a Tier2 city, I have had very few options of dealers and brands to listen to,
So Far I've heard the Emotiva Airmotive, Elac 5.3, Fyne F501E,Klipsch and XTZ setups.
However I heard them a few weeks or even months apart so couldn't really draw comparison to any one of them.
I was leaning towards the Klipsch given how clean they sound but the prices which were quoted to me were atrocious.
For Projectors I have only experienced the Benq TK710, and one of the ViewSonic's (dont recall which one) but was <1.5L. The biggest size I can fit in my room is 150", so I need recs for an ALR screen as well. I am very confused because I don't know how the legacy Brands like BenQ, Epson and Optoma compare to new age chinese brands like XGIMI and Hisense.
The room is designed to be a bar + theatre room with an outdoor party area attached, the family did not agree to a completely dedicated HT room.
I have the wires laid out (with the proper gauge) in my new house for a 7.1.4 HT system, with the ability to add a second sub in future, I also experienced the SVS PB2000Pro and really liked it, and the pricing is not very far from what its priced in the US.
I realise I will have to travel to listen and even buy the speakers im looking for, so im open to it. My usage will be 70% movies and 30% music.
The sound treatment of the room has been done by a local vendor.
My budget is 10Lakhs and maybe flexible by about 10%.
Room size is 24' length, 14' Wide and 9-9.5' height.
Thanks in advance
